近期热门
【特约教程】周铃:参数化设计在室内设计中的运用

[其他] 【特约教程】周铃:参数化设计在室内设计中的运用

[复制链接]
2534 1 0 0 9年前 举报
这是一个室内设计的相关教程,但是首先我们要来聊聊建筑设计。建筑设计现在的大趋势、大潮流词汇相信大家都有所耳闻---BIM,参数化设计,绿色建筑等,其中我要提的就是参数化设计,因为这块在不久的将来maybe会成为室内设计蜕变的趋势。
何谓参数化设计?
实际上,参数化只是一个工具,本质上和su一样,可以拓宽设计者的思路,不用参数化可以做出好建筑,就好像不用电脑也可以做设计,但是参数化会给设计带来更多的可能性,就好像电脑可以让设计更轻松一样。真正重要的始终在于设计者的思维,这才是真正可以创造出好设计的源泉。这在室内设计也同理,借助参数化设计,让设计思维不受限制,省时高效的达到更好的效果。

为了给大家专业的讲解这块,小编特邀请到VIP群里的渲云达人周铃(网名:素羽ZL)——一位设计界的学霸,给小伙伴们解析参数化设计的相关知识,工作原理,如何使用等,教大家运用不同的软件,高效实现设计目的。

0.jpg

物介绍
周铃原先是在贵州大学读研,主攻工业设计工程,毕业后反其道行之,并未从事工业设计的相关工作,反而对室内设计“一见倾心”,在室内设计学习浸淫两年,后跟志同道合的小伙伴创办了素羽设计工作室,周铃说“这就是自己的梦想,工作室就是梦开始的地方。”

程课题参数化设计在室内设计中的运用
参数化设计篇
前几天受渲云邀请说出一个教程跟大家分享一下作图的心得或是有什么好的技巧跟大家分享一下。思前想后不知道该写些什么,因为不管是对于室内设计还是效果图表现来说,我其实还是一个学徒,不敢在其他大神面前献丑,但是如果说非得要写些什么的话我就想到了——参数化。

因为我觉得室内设计也有也将会像建筑设计那样朝着参数化设计的方向发展,想借此机会在这里和大家分享一些关于参数化设计的一些东西,在这里我先把题目暂定“室内设计中的多软件综合运用”好啦,不多说了,进入正文吧。

“参数化”一词也许在前几年来说对于大家都很陌生,但是现在再来说这一个词就不会觉得那么遥不可及。现在我们身边的绝大多数的设计都已经看似充斥着参数化的身影,鸟巢、水立方、凤凰国际等等。这些都是国内的地标性建筑,国外的就更不用说啦。也许你会觉得那些参数化设计的项目都是建筑方面的大型项目,搞室内的没那必要。作为一名室内设计师来说室内和室外有时候是需要区分的,这一点没错,因为从空间的划分上来说一个是“内”一个是“外”。

那么“内”为何要去学“外”,这里我就不多说了,以一个简单案例就能说明这个问题,东方卫视的综艺节目《梦想改造家》大家都熟悉,在第一季的最后改造节目《四川牛背山中蒲麦地》节目中就是一次很好的将参数化设计的手段与实际的小项目相结合、室内与室外相融合的案例,设计师在改造过程中就是运用了参数化设计来进行实际运用的,最后到达一个非常好的效果。(其实它和扎哈设计的阿利耶夫文化中心有点类似,这就不说啦)

1.jpg
图01-四川牛背山中蒲麦地
2.jpg
图02-阿利耶夫文化中心

从这一期节目来我看到了今后发展的一个趋势,参数化设计将会从建筑开始逐步运用于室内,就像当初设计从建筑开始,然后发展到其他领域,这一过程将会“轮回”。因此我觉得我们就不应该局限于传统的建模思路和建模技术,应该多软件、多手段的方式相结合,运用综合性的思路去解决设计问题,这样才能使得我们面临复杂情况不至于束手无策。

这里我简单介绍一下参数化设计,也就当时了解一下。参数化最常用的软件就是Grasshopper(草蜢,以下简称GH),它是一款以Rhino犀牛为平台的非线性参数化设计的插件,它可以使设计师很直观的进行非线性参数化模型的制作。它的原理简单点来说就是像是一个函数或者是一个数学游戏,构建一个逻辑模型,输入参数得到结果,把计算留给了计算机。

3.jpg
图03-逻辑插图
可能有些人会不懂为什么3D的交流教程,却讲的是犀牛和GH,这里我主要是想的是和大家分享一下这个东西,就像前面说的一样,不要把自己局限在一个框内,如果有兴趣的可以自己去了解一下。

可能前面的说得有点抽象,这里我举个例子来看。先运行犀牛,然后通过犀牛运行安装的插件GH,然后通过一个简单的模型就能明白其中道理。

4.jpg
图04-软件界面
模型A中是在输入端给了两个不同的数值而得到的不同结果,模型B中则是在逻辑模型中增加了旋转的命令,使得形态开始发生变化,而这一过程,只需要构建好逻辑模型就能够实现。这样为我们设计提供了很直观的一个操作感受。

5.jpg
图05-原理演示
那么我用一个比较简单的例子来,跟大家演示一个案例来看一下,参数化是如何运用的。
步骤一:我们来先看一些参数化设计的简单例子,看看室内有哪些运用(案例太多就找了几个)。

6.jpg
7.jpg
8.jpg
9.jpg
步骤二:这些案例都是一些简单的基本操作,我选择第一种方式来做一个演示,因为这样的设计其实在工装里面用得算是比较多的,那我们如果遇到这样的设计怎么样才能高效的实现模型的制作?用现成的还是用CAD或者3D去画线手调?

10.jpg

我找了一个案例的来看,这张效果图中能够看得出这个背景墙做得效果其实是不好的,线条和造型就显得比较僵硬没有变化,没有得到一个好的曲线流动形态。也许有些大神也会在3D里面通过做曲面,然后细分画线,提出线条然后再放样得到,这个可以实现,但是如果需要改动的话,那就相当于重新做一遍。而且尺寸数据导出不利于机器加工,当然这里的加工指的是数控机械加工,人工的话就不说啦。

11.jpg
步骤三:通过犀牛和GH,其实就能解决这些问题。先在犀牛软件中打开GH,然后在犀牛中绘制几根线条,线条的根数自己定,主要是用来生成曲面的,因为Rhino犀牛这一款软件的建模思路是运用Nurbs曲线来建模的,它有着强大的曲面处理优势,当然如果直接用面画也可以,这里是想用最基础的元素作为控制,这样能更好的从根本上去控制形态变化。建模思路是和犀牛里面的是一样的都是通过放样或是扫描得到曲面,只是在GH中通过电池符来控制,运算过程是计算机完成。

12.jpg
步骤四:得到曲面我们下一步就得去找线,因为前面介绍到犀牛是通过线来建面,那么我们的参数化思路也是一样。通过重新划分UV线得到我们想要的线条,案例中选择竖线数值为100,横向为0(因为我们知道一个曲面展开可以有卷成一个圆柱,这样就会有一条接缝,因此横向不能为0,否则不能生成UV线)当然这些数字是通过滑块控制,分解、重组UV线以后就得到我们想要的线条。

13.jpg
步骤五:重组UV后将每一个面融合得到完整的曲面,然后将融合后的曲面通过提取结构线,选择出我们需要的线条。

14.jpg
步骤六:通过在线上画点确定截面的位置,点的数量由滑块控制,这里给的值是10。然后通过点和方向向量确定位置。

15.jpg
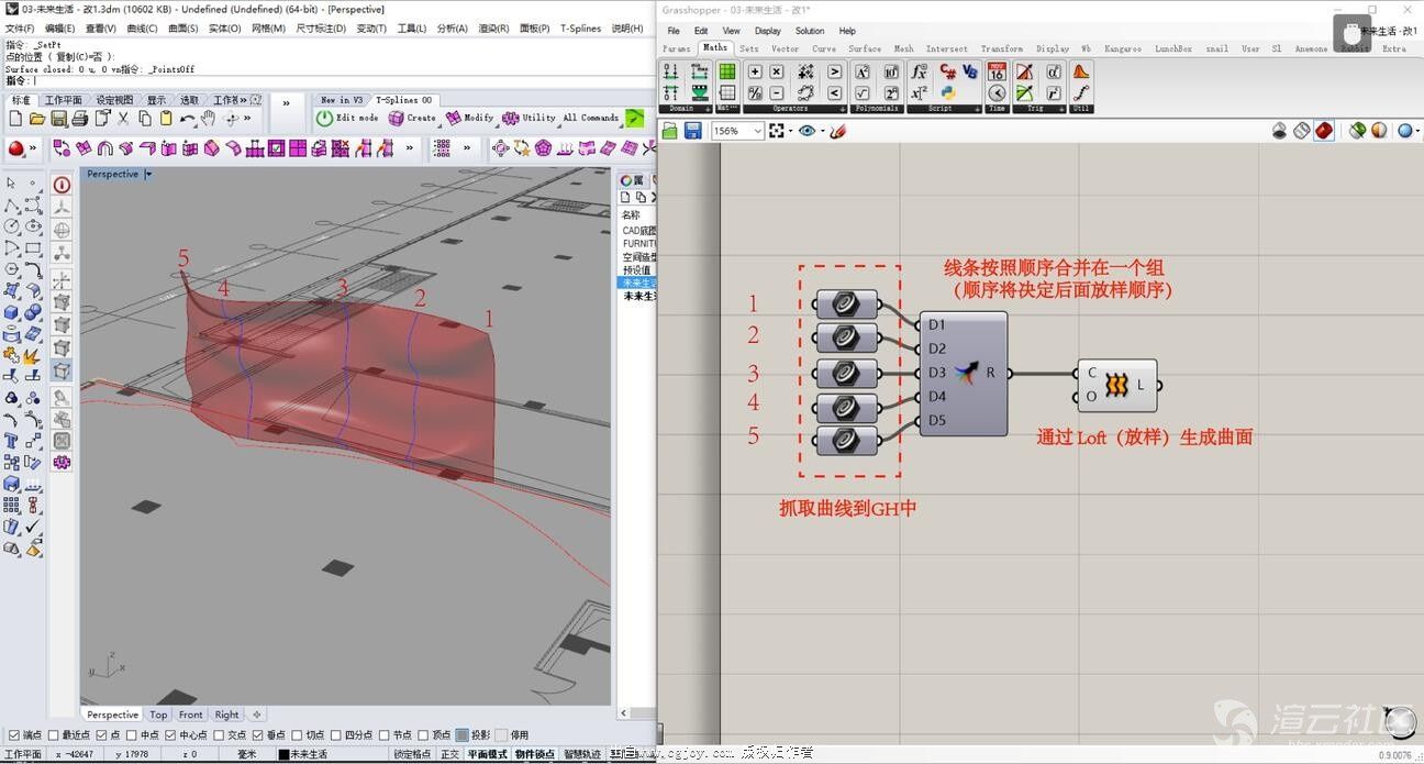
步骤七:然后绘制截面图形,得到截面线条,再次通过Loft(放样)得到最后模型。

16.jpg
步骤八:“烘焙”出来的犀牛模型可以导Obj格式在3D Max中进行场景渲染,可以导出CAD来进行实际加工。在“烘焙”之前如果我们要多模型的曲线或者是数量进行修改,只要改的动数值或者是在犀牛里面调节曲线,它就会生成相应的结果,是不是比较灵活了?当也可以通过GH将CAD线提取出来,并且展开到一个平面上直接运用于数控机械加工,这就不需要手动调节,这里我就不多说啦。

17.jpg

讲了那么多废话,可能你也看晕了,不过没关系,写这个的目的不是为了教会你什么,而是想通过这样的一个例子让大家明白,适当的选择软件可以提高我们的效率,同时也能够绘制出不错的造型。我还想补充的一点是,参数化设计也将是室内设计的一个发展方向,这就需要我们懂得综合的运用不同的软件来为我们服务,以求高效的实现设计目的。我想和大家分享的也就这些吧,第一次写这东西,不擅长文字表述,希望大家原谅,同时也希望大家能指出不足,方便大家以后学习交流,在这里先谢过。

附:曲面流体造型案例分享
网盘地址→http://pan.baidu.com/s/1qYUx8W8
提取密码7be3


0
点赞
0
打赏
0
添加到收藏夹

0

点击复制链接

使用微信扫码分享
一次扣10个券
全部评论1
您需要登录后才可以回帖 登录

感谢楼主分享,谢谢~
9年前  ·  2楼
回复

使用道具 举报

您当前使用的浏览器IE内核版本过低会导致网站显示错误

请使用高速内核浏览器或其他浏览器